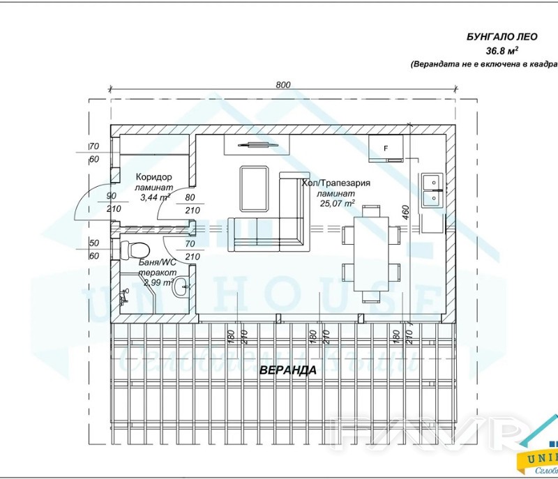
Бунгало Дом Лео 36,8 м2
Цена:
По договаряне
Номер на обявата: 2769
Посл. промяна: 03.09.2025
Публикувана на: 25.12.2021
Описание
Отлично практично и функционално едноетажно бунгало 36, 8 кв.м. Дом Лео разполага с голямо дневно помещение, включващо кухненски бокс, трапезария и хол с възможност за позициониране на разтегателен диван. Пространството е разпределено оптимално, за най-голям комфорт и функционалност. Има още санитарно помещение и антре, а дневната част е с гледка и достъп към верандата.
Подходящо е както за бизнес начинания в областта на туризма – така и за лични проекти.
Бързо изпълнимо, с готов проект и всичко необходимо за целта.
Работи се в цяла България.
Разполагаме и с отлични дизайнери, които с готовност биха съдействали за реализирането дори и на най-нестандартните желания.
гр. София, ж-к "Красно село"
бул. "Цар Борис III" № 125, в локалното
https://laminat-gufi07.com/
089 9 829 258
Подходящо е както за бизнес начинания в областта на туризма – така и за лични проекти.
Бързо изпълнимо, с готов проект и всичко необходимо за целта.
Работи се в цяла България.
Разполагаме и с отлични дизайнери, които с готовност биха съдействали за реализирането дори и на най-нестандартните желания.
гр. София, ж-к "Красно село"
бул. "Цар Борис III" № 125, в локалното
https://laminat-gufi07.com/
089 9 829 258
Уебсайт: https://laminat-gufi07.com/
За контакт
Населено място
София, София град
, 1618, кв. Красно село, бул. Цар Борис III, 125, в локалното
